descriptif du bien
STUDIO/ 2 PIÈCES DOLY est fier de vous présenter ce studio de 27 m² situé au Rez de chaussée en plein cœur de Levallois-Perret. Il se compose d’une entrée avec rangements, desservant une salle de bains, puis une pièce à vivre avec kitchenette. Fonctionnel et…
Lire la suite
STUDIO/ 2 PIÈCES
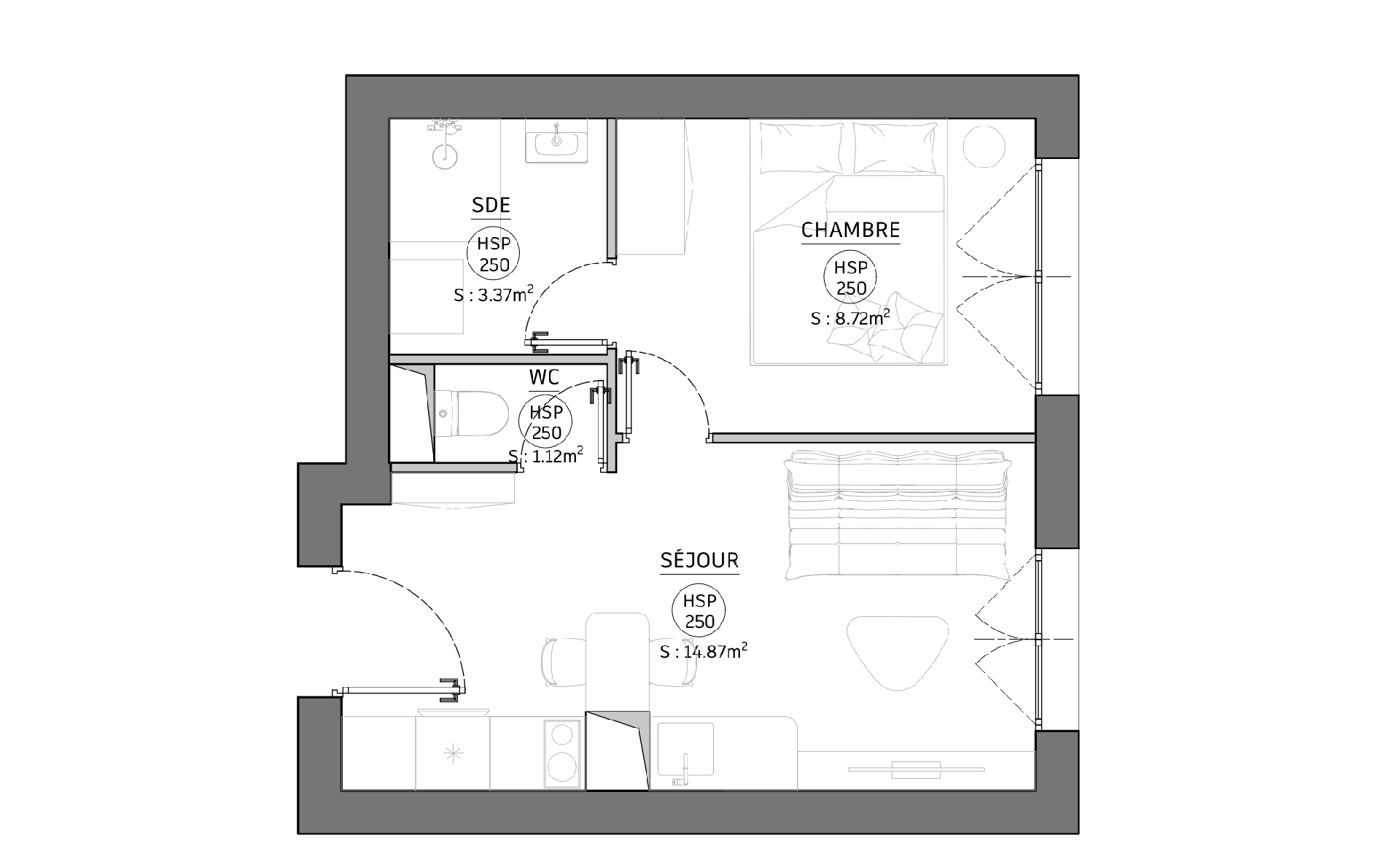
DOLY est fier de vous présenter ce studio de 27 m² situé au Rez de chaussée en plein cœur de Levallois-Perret.
Il se compose d’une entrée avec rangements, desservant une salle de bains, puis une pièce à vivre avec kitchenette. Fonctionnel et bien agencé, il constitue un excellent pied-à-terre ou un investissement locatif idéal.
Possibilité d’en faire un beau 2 pièces. (cf dernière photo de l’annonce)
Vous apprécierez sa localisation privilégiée, avec commerces, restaurants, parcs et toutes commodités à proximité immédiate.
Idéalement desservi par les transports : Métro Louise Michel (ligne 3) à 4 min à pied, Métro Porte de Champerret (ligne 3) à 8 min à pied
Un bien pratique et recherché, à venir visiter rapidement !
caractéristiques
Ce que propose ce logement
| Type de bien | Appartement |
| Surface | m² |
| Nombre de pièce(s) | 2 |
| Nombre de chambre(s) | 1 |
| Étage | |
| Année de construction | 2013 |
Collectif
Levallois-Perret
Nord
emplacement
Levallois-Perret, Chaptal
Ce bien vous intéresse ?
267 000€ HAI
DOLY – APPARTEMENT –RUE CHAPTAL- LEVALLOIS-PERRET

Carla TEMIM
+33623295171
Voir le plan
Déposer mes critères de recherche




























