descriptif du bien
À proximité immédiate du boulevard Haussmann, à deux pas du parc Monceau, dans un secteur central et très recherché de la rive droite, DOLY vous présente ce local de 243 m² répartis comme suit : 56 m² en rez-de-chaussée et 187 m² en souplex, dont…
Lire la suite
À proximité immédiate du boulevard Haussmann, à deux pas du parc Monceau, dans un secteur central et très recherché de la rive droite, DOLY vous présente ce local de 243 m² répartis comme suit : 56 m² en rez-de-chaussée et 187 m² en souplex, dont 35 m² sous verrière.
Situé dans la cour d’un immeuble de standing avec gardienne, au cœur du 8e arrondissement, il bénéficie d’un environnement calme et confidentiel.
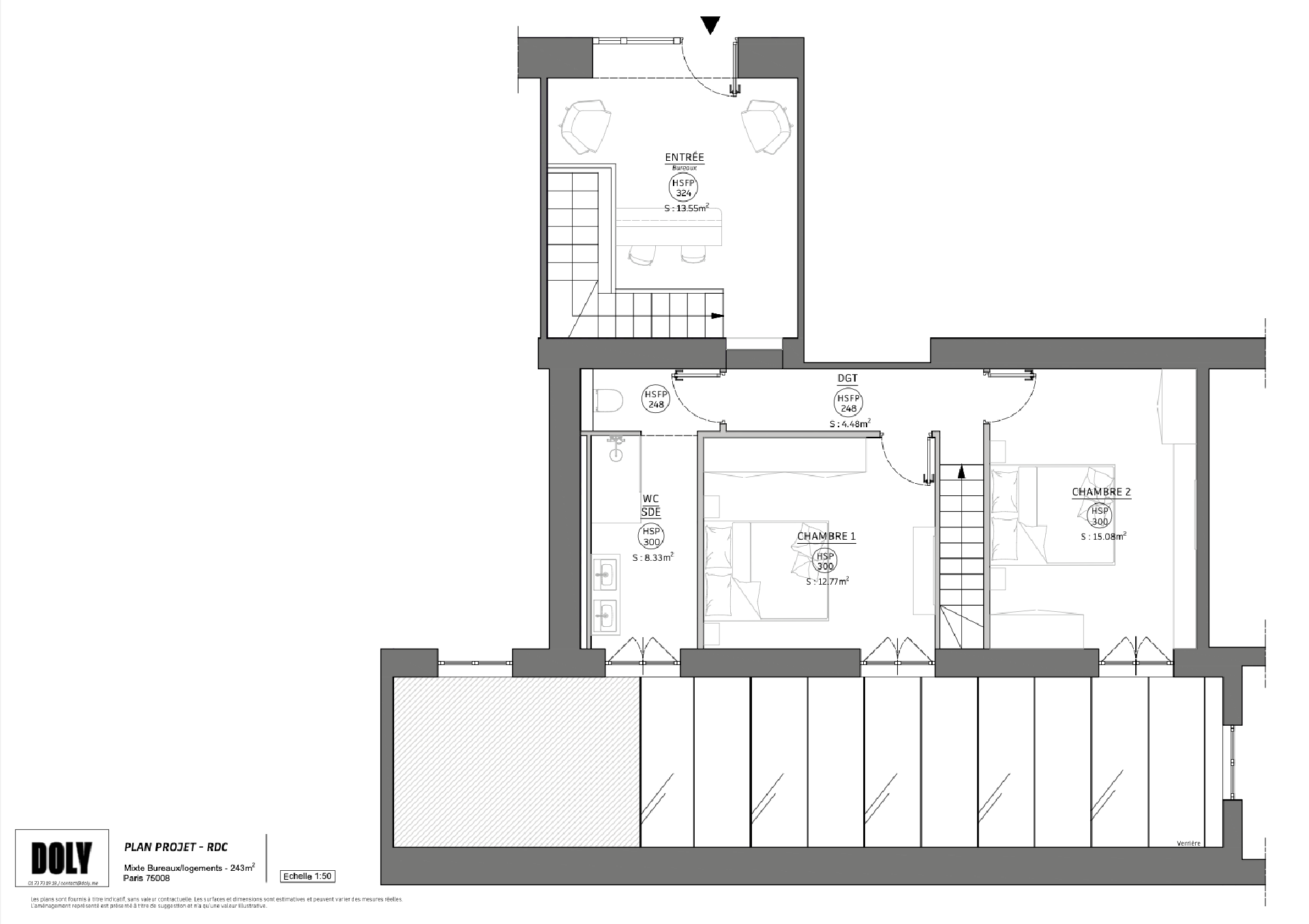
Actuellement à usage commercial, ce bien peut être transformé en usage mixte en le scindant en deux duplex :
– bureaux accessibles par l’entrée principale dans la cour ( parties en noir et blanc sur les plans )
– habitation par une deuxième entrée en retrait de la cour ( parties en 3D sur les plans )
En images les plans actuels, les plans après rénovation ainsi qu’une vidéo de projection de la partie habitation.
Côté habitation, en souplex , un salon sous verrière, une salle-à-manger avec cuisine équipée, une suite parentale avec salle de bains et un toilette indépendant.
Au rez-de-chaussée , deux chambres, une salle de bains avec douche et un toilette indépendant
Les bureaux en souplex, accessibles par l’espace d’accueil en rez-de-chaussée, se composent d’une salle d’attente, de quatre espaces de travail, d’une cuisine et de deux WC.
Verrière neuve et système de ventilation récemment rénové.
caractéristiques
Ce que propose ce logement
| Type de bien | Appartement |
| Surface | 242.93 m² |
| Nombre de pièce(s) | 6 |
| Nombre de chambre(s) | 0 |
| Étage | |
| Année de construction | 1890 |
Individuel
Paris
Array
emplacement
Paris 8ème, de Miromesnil
Ce bien vous intéresse ?
1 790 000€ HAI
6 PIÈCES À RÉNOVER – DOLY – VILLIERS – 75008 PARIS

Eva Taieb
+33611960608
Voir le plan
Déposer mes critères de recherche

















