descriptif du bien
Idéalement situé à deux pas de la Mairie d'Issy-les-Moulineaux, DOLY est fier de vous présenter en EXCLUSIVITÉ ce grand deux pièces de 64,40 m2 (dont 59,60 m2 loi carrez) au 1er étage d'un petit immeuble des années 30 et son rooftop de 58,80 m2. Vous…
Lire la suite
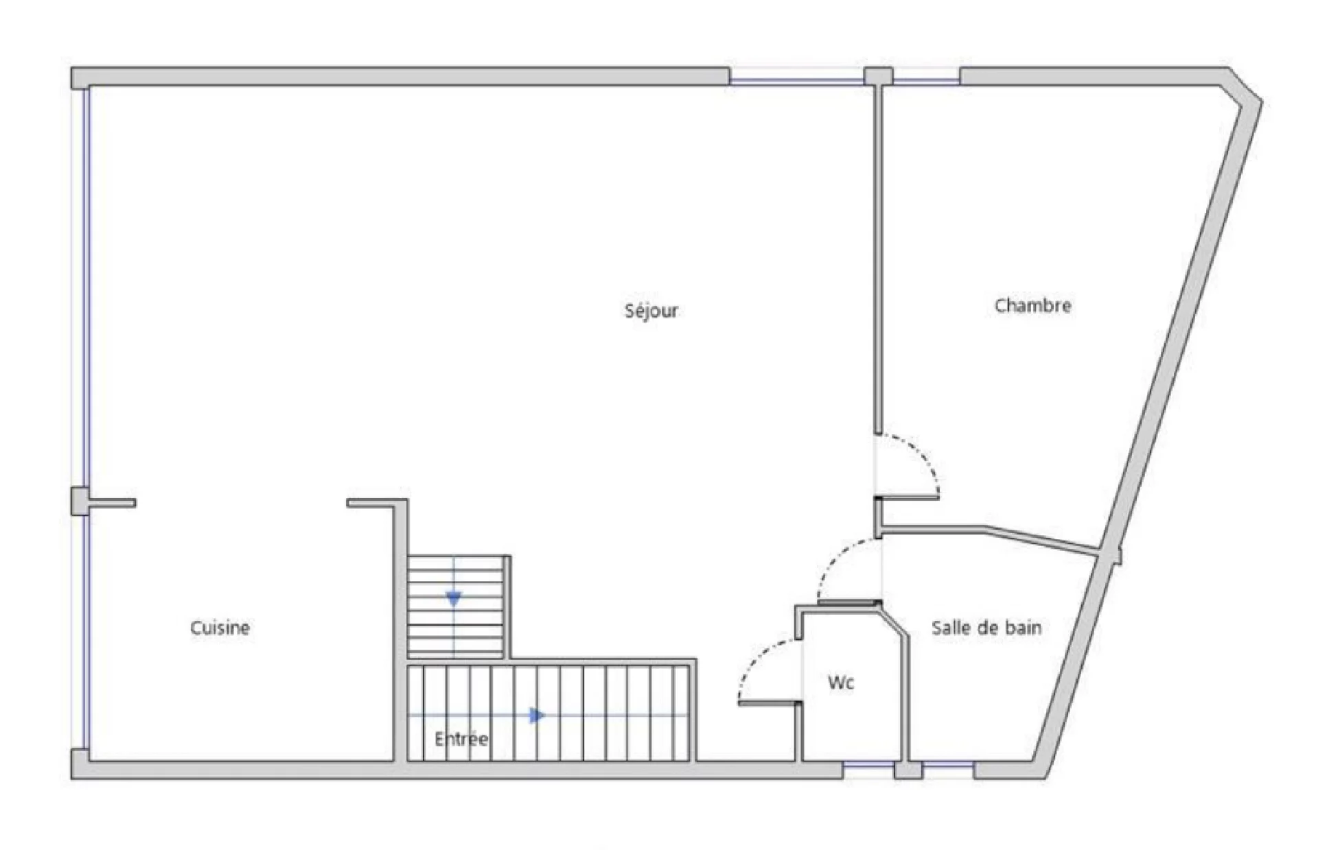
Idéalement situé à deux pas de la Mairie d’Issy-les-Moulineaux, DOLY est fier de vous présenter en EXCLUSIVITÉ ce grand deux pièces de 64,40 m2 (dont 59,60 m2 loi carrez) au 1er étage d’un petit immeuble des années 30 et son rooftop de 58,80 m2.
Vous serez séduit par son double séjour de 36,45 m2 baigné de lumière naturelle grâce à son plafond en brique de verre et ses trois fenêtres exposé Sud-Ouest et son vaste rooftop accessible directement depuis l’appartement.
Il se compose également d’une cuisine semi-ouverte donnant sur le séjour, une chambre avec placards, une salle de bain et un toilette indépendant.
Possibilité de créer une seconde chambre.
Travaux de rafraîchissement à prévoir.
DPE E/B
Plancher chauffant à rayonnement électrique individuel
Ballon d’eau chaude individuel
* À VISITER *
caractéristiques
Ce que propose ce logement
| Type de bien | Appartement |
| Surface | 75.00 m² |
| Nombre de pièce(s) | 2 |
| Nombre de chambre(s) | 1 |
| Étage | 1 |
| Année de construction | 1930 |
Individuel
Issy-les-Moulineaux
Sud-ouest
emplacement
Issy-les-Moulineaux, bis Kléber
Ce bien vous intéresse ?
599 000€ HAI
EXCLUSIVITÉ DOLY // GRAND 2 PIÈCES // GRAND ROOFTOP // MAIRIE D’ISSY

Mélanie Leclerc
+33669952557
Voir le plan
Déposer mes critères de recherche





















