descriptif du bien
DOLY est fier de vous présenter, en exclusivité, ce bien rare et exceptionnel tant par sa localisation que par ses nombreux atouts. Situé au cœur de la Cité des fleurs, ensemble charmant de petits immeubles anciens et d‘hôtels particuliers qui fleure bon la campagne. Vous…
Lire la suite
DOLY est fier de vous présenter, en exclusivité, ce bien rare et exceptionnel tant par sa localisation que par ses nombreux atouts.
Situé au cœur de la Cité des fleurs, ensemble charmant de petits immeubles anciens et d‘hôtels particuliers qui fleure bon la campagne.
Vous serez sans aucun doute séduit par ce cocon doté d’une terrasse de 27m2 coupé de l’animation urbaine et bénéficiant d’une vue exceptionnelle à 360° sur le ciel et les toits de Paris.
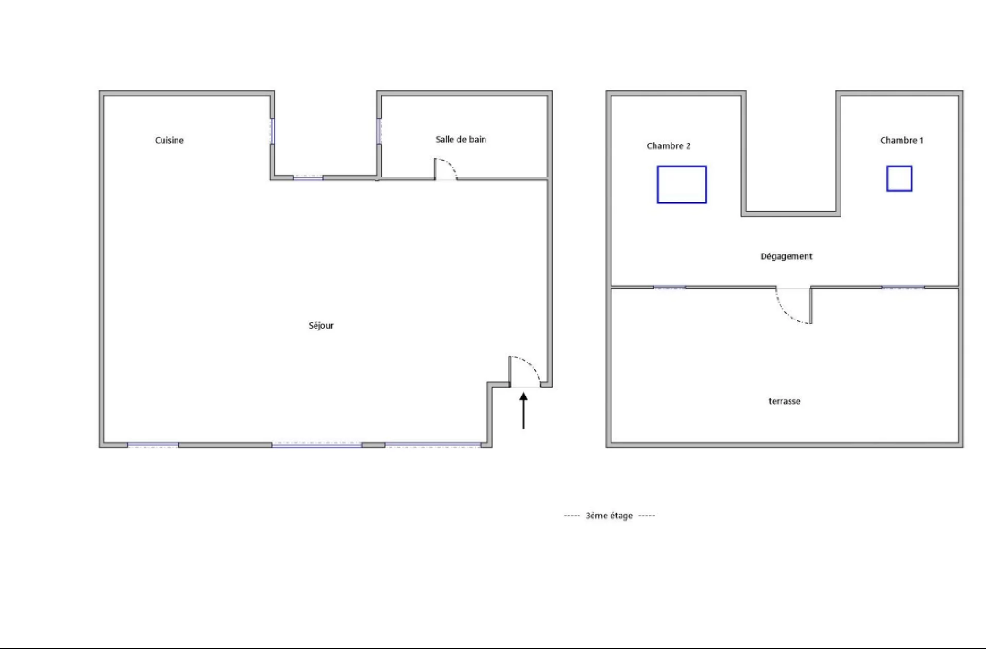
Niché au troisième et dernier étage par escalier d’une petite copropriété 1880 avec gardien, cet appartement traversant de 66m2 pondérés ( 55m2 Carrez – 61m2 au sol + extérieur de 27m2 ) se compose d’une vaste pièce de vie de 33m2 munie de baies vitrées et de poutres au plafond , d’une cuisine semi-ouverte et d’une salle de bains avec douche et toilette.
À l’étage une chambre confortable et un bureau pouvant être aménagé en chambre d’appoint. Les vasistas apportent une belle luminosité à cet espace.
En leur centre , un accès à la terrasse végétalisée , espace de vie à part entière aménagé d’un salon et d’un coin repas.
Les fenêtres hublots ouvrant sur la terrasse nous emportent dans une atmosphère onirique, hors du temps. Une péniche arrimée sur les toits de Paris !
HSP : 2,50m sur l’étage principal et 1m80 au premier.
Appartement climatisé à l’étage
DPE G ( différents axes d’amélioration possible )
Station Brochant ( L13)
caractéristiques
Ce que propose ce logement
| Type de bien | Appartement |
| Surface | 66.00 m² |
| Nombre de pièce(s) | 2 |
| Nombre de chambre(s) | 1 |
| Étage | 3 sur 2 |
| Année de construction | 1880 |
Individuel
Paris
Array
emplacement
Paris 17ème, Cité des Fleurs
Ce bien vous intéresse ?
800 000€ HAI
EXCLUSIVITÉ DOLY – APPARTEMENT AVEC TERRASSE – CITÉ DES FLEURS – 75017

Eva Taieb
+33611960608
Voir le plan
Déposer mes critères de recherche























